南非特种车辆工厂项目:11台桥式和龙门起重机定制解决方案

琪琪
龙门吊机,桥式起重机,南非

DGCRANE 为南非一家特种车辆制造厂提供了定制的起重解决方案,成功交付了总共 11 台起重设备,包括双梁桥式起重机、单梁半门式起重机和单梁桥式起重机。

为了满足客户多场景车间作业和定制化需求,DGCRANE 提供了涵盖产品设计、制造和技术支持的全流程服务。

该设备符合客户要求,满足运行需求,性能稳定可靠。客户对该项目表示满意,并表示有兴趣未来继续合作。

南非安装的架空起重机
11台桥式起重机及龙门起重机出口南非2
11台桥式起重机及龙门起重机出口南非1
11台桥式起重机及龙门起重机出口南非6
11台桥式起重机及龙门起重机出口南非

客户采购要求

  1. 产品组合要求:客户需要同时购买双梁桥式起重机、单梁半门式起重机、单梁桥式起重机等型号,以满足不同车间场景下的物料搬运需求。
  2. 本地化配置要求:所有设备必须适应南非的 380V / 50Hz / 三相电压标准。
  3. 技术支持要求:需要提供完整的安装图纸和技术文档,以支持客户独立进行安装和调试。

定制化解决方案

1. 用于车间物料搬运的多类型起重机解决方案

(1)半龙门起重机:适用于墙边作业,结构紧凑,空间有限

对于靠墙工作站、空间有限的车间以及无法安装地面导轨的情况, 半龙门起重机 使用时重点关注空间利用率和运行安全性:

  • 配备 F 系列垂直电机,结构紧凑,传动效率高,减少了支腿占用空间。
  • 采用聚氨酯涂层钢轮,无需轨道。这种设计可减少地面磨损,提高稳定性,并降低噪音。端梁上安装有导向轮,可防止车轮偏移,确保安全运行。
  • 在复杂的车间环境中,为了防止意外撞击,在地面梁电机外部安装了钢制保护框架,从而提高了耐用性和安全性。
半龙门起重机图纸水印

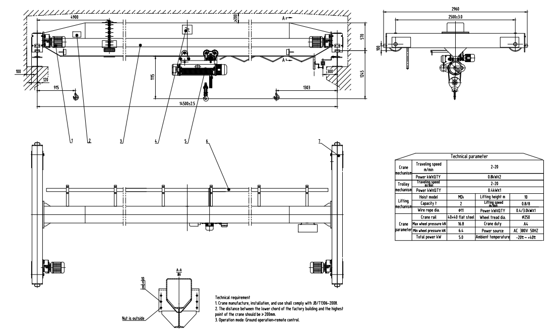
(2)高规格双梁桥式起重机:运行平稳,能耗低

为了满足客户在同一跨度内运行两台起重机的需求,并提高其稳定性和用户体验,我们定制了一台高规格的双梁桥式起重机。该设计在安全性、性能和能源效率方面均有所提升。

  • 配备红外防碰撞系统。当接近安全阈值时,系统会自动减速或刹车以防止碰撞。
  • 升降和行走均采用变频控制,确保运行平稳无冲击,定位和控制精度比标准桥式起重机高得多。
  • 运行噪音保持在 70 分贝以下,营造更安静的车间环境,整体节能高达 30%,降低长期电力成本。
  • 模块化设计便于维护,降低生命周期维护成本,有效延长使用寿命。
双梁桥式起重机图纸(带水印)

(3)标准单梁桥式起重机:高性价比

对于仅需基本功能、稳定运行以及三台起重机在同一跑道上同时运行的应用,采用具有优化行走机构的标准化配置,以平衡成本效益和运行需求:

  • 使用标准 单梁桥式起重机 结构可靠,用途广泛,既能降低采购成本,又能完全满足运营要求;
  • 起重机行走机构和台车行走机构均配备变频驱动器,有效减少启停冲击,确保平稳运行;
  • 配备红外防碰撞系统,可消除三台起重机在同一跑道上同时运行时的碰撞风险,确保作业安全。
单梁桥式起重机图纸(带水印)

2. 适应南非的运营条件

  • 电源系统适应性:所有设备均按照南非标准电压 380V/50Hz/3Ph 设计,以确保与当地电网完全兼容;
  • 双语标签:所有机械和电气部件的铭牌和规格说明均提供中文和英文版本,方便本地操作和维护。

3. 完整的客户自行安装文档

  • 完整的技术文件交付:提供全套图纸,包括桥式起重机总布置图(CAD格式)、主梁装配图、节点截面图、电动葫芦总图和电气接线图;
  • 原厂文件:设备随附电子版的检验报告、材料证书、装箱单和组件手册;
  • 远程技术支持:在整个安装过程中提供持续的远程指导,并对遇到的技术问题提供及时的帮助。
2 吨单梁桥式起重机
2 吨单梁半龙门起重机

项目成果:赢得客户认可并建立长期合作伙伴关系

  • 11台起重机全部运行平稳,定位准确,有效满足了车间的起重需求。
  • 全部11台设备的生产在50天内完成,随后约1个月内安全运抵现场。客户在2周内完成了安装调试,确保了生产线按计划投入运营。
  • 客户对我们的产品质量、制造能力和服务感到满意,并已开始洽谈后续合作事宜。

如果您正在寻找桥式起重机或门式起重机,无论是单台定制、批量交付,还是针对特殊工作条件的非标设计,DGCRANE 都能根据您的实际操作场景提供量身定制的解决方案和专业的选型建议。

欢迎随时联系我们,获取免费的一对一解决方案设计和定制报价。

赵卓拉

赵卓拉

桥式起重机/门式起重机/旋臂起重机/起重机零部件解决方案专家

拥有10多年起重机海外出口行业经验,帮助10,000+客户解决售前问题和疑虑,如果您有任何相关需求,请随时与我联系!

微信: +86 189 3735 0200
电子邮件。 zorazhao@dgcrane.com

联系信息

DGCRANE致力于提供专业的桥式起重机产品和相关服务。出口到100多个国家,5000多个客户选择我们,值得信赖。

取得联系

请填写您的详细资料,我们的销售团队会在24小时内给您答复

点击或拖动文件到这个区域进行上传。 你最多可以上传5个文件。